Detailansicht
Alle Informationen zur ausgewählten Immobilie
Neubauprojekt | Stilvolles Architektenhaus | beste Lage von 54533 Hasborn | inkl. Grundstück










- Objektart
- Haus
- Objekttyp
- Einfamilienhaus
- Vermarktungsart
- Kauf
- PLZ
- 54533
- Ort
- Hasborn
- ImmoNr
- MH-0098-25
- Wohnfläche
- ca. 147 m²
- Grundstücksgröße
- ca. 660 m²
- Anzahl Zimmer
- 6
- Anzahl Badezimmer
- 2
- Kaufpreis
- 499.050,00 €
- Baujahr
- 2026
Beschreibung
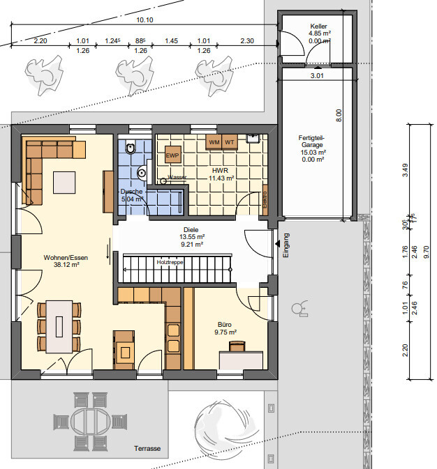
Willkommen in Ihrem zukünftigen Traumhaus in Hasborn!Dieses geplante Einfamilienhaus mit Fertigstellung in 2026 vereint moderne Architektur, hochwertige Ausstattung und energieeffiziente Bauweise. In einer ruhigen Straße mit guter Anbindung entsteht ein Massivhaus im KfW55-Standard, das erstklassigen Wohnkomfort bietet.
Auf einem ca. 660 m² großen Grundstück erwartet Sie eine Wohnfläche von ca. 147 m² auf zwei Ebenen. Insgesamt sechs gut geschnittene Zimmer, darunter fünf Schlafzimmer, bieten viel Platz für Familien, Arbeiten und individuelle Wohnideen. Große Fensterfronten, eine durchdachte Raumaufteilung und moderne Materialien schaffen ein helles, freundliches Wohnambiente.
Die Technik überzeugt mit einer Luft-/Wasser-Wärmepumpe, vollflächiger Fußbodenheizung mit Einzelraumsteuerung sowie 3-fach verglasten Kunststofffenstern mit elektrischen Rollläden. Zwei moderne Badezimmer – davon eines mit bodengleicher Dusche – sorgen für hohen Komfort im Alltag. Die großzügige Terrasse lädt zu entspannten Stunden im Freien ein. Auf Wunsch kann eine Garage ergänzt werden.
Die Verfügbarkeit erfolgt nach Absprache.
Vereinbaren Sie gerne einen unverbindlichen Beratungstermin mit uns!
Lage
Das Einfamilienhaus befindet sich in der malerischen und ruhigen Gemeinde Hasborn in Deutschland. Diese Lage bietet eine perfekte Balance zwischen ländlichem Charme und einer guten Anbindung an die Vorzüge des städtischen Lebens. Das Zentrum von Hasborn ist nur einen kurzen Spaziergang entfernt, sodass alltägliche Besorgungen bequem erledigt werden können.Die Nähe zur Autobahn gewährleistet eine hervorragende Verkehrsanbindung, wodurch auch längere Fahrten problemlos möglich sind. Familienfreundliche Einrichtungen sind ebenso gut erreichbar: Ein Kindergarten ist lediglich etwas mehr als einen Kilometer entfernt und für die jüngeren Schulkinder ist die Grundschule in fußläufiger Distanz bequem zu erreichen. Auch weiterführende Schulen wie eine Realschule und ein Gymnasium sind in der Nähe ansässig und sorgen für vielfältige Bildungschancen.
Die Umgebung von Hasborn ist geprägt von einer idyllischen Landschaft, die zu ausgedehnten Spaziergängen und Freizeitaktivitäten im Freien einlädt. Diese attraktive Kombination aus exzellenter Lage und erreichbaren Annehmlichkeiten macht dieses Einfamilienhaus zu einem idealen Zuhause für Familien jeden Alters.
Ausstattung
- Terrasse- Fußbodenheizung mit Einzelraumsteuerung
- Luft-/Wasser-Wärmepumpe
- Massive, monolithische Bauweise
- Energieeffizienz nach Gebäudeenergiegesetz (KfW55)
- 3-fach-Verglasung
- Elektrische Rollläden
- Hochwertige Fliesen- und Parkettböden inkl. Bemusterung
- Bodengleiche Dusche
- Zusätzliches Duschbad
- Moderne Grundrisse
- Hochwertige Ausstattung
- Garage auf Wunsch
- Schlüsselfertig oder als Ausbauhaus erhältlich
- Individuelle Grundrissgestaltung möglich
Sonstige Angaben
MH ImmoConcept steht Ihnen gerne telefonisch zur Verfügung. Sie erreichen uns unter 06571/173 86 44 oder 0175/278 27 09. Oder senden Sie und eine Email mit dem Betreff (Objekt-ID) und Ihrer Telefonnummer an info@mh-immoconcept.com, wir rufen Sie zurück.Wir weisen darauf hin, dass wir sämtliche Angaben vom Eigentümer erhielten und geben diese ohne Haftung weiter.
Irrtum und Zwischenverkauf bleiben vorbehalten.
Ansprechpartner
Herr Marcel Hädrich
MH ImmoConcept
Himmeroder Str. 3
54516 Wittlich
Telefon1
+49175/2782709
mobile
+49175/2782709
Email
info@mh-immoconcept.de
Seiten: 1